中譽鼎力DLHGC臥式旋回破碎機進駐地下鐵礦項目!
中譽鼎力DLHGC臥式旋回破碎機在山西忻州某鐵礦石生產線中,安置于采礦洞內進行頭破作業,直接將原石破碎至皮帶機可輸送的物料規格,并能滿足二、三級破碎所需的礦石粒度規格。設備相比傳統旋回破礦石進料高度約50%~60%,基礎設施建設成本約60%~70%,可降低大型礦山破碎現場的投資成本。詳細解答
詳細解答
DLHGC臥式旋回破碎機是中譽鼎力結合傳統旋回破碎機及顎式破碎機破碎理念研發而成的硬巖破碎機產品。這款設備相比傳統旋回破礦石進料高度約50%~60%,基礎設施建設成本約60%~70%,可降低大型礦山破碎現場的投資成本。
DLHGC臥式旋回破碎機(粗碎)

進料高度低/恒定沖程及排礦口/智能化控制
低速/加長型恒定破碎腔,層壓破碎
具有選擇性破碎功能/件使用壽命長
壓力及位移傳感器實現雙重過載保護
中譽鼎力DLHGC臥式旋回破碎機針對地下采礦或大型移動破碎作業具有很大優勢,旋回輥平衡單元設計,更易于安裝在鋼結構上使用,實現大型礦山快速建廠。這款設備的多重優勢,近日在山西某客戶的項目現場得到了實際應用。具體效果如何呢?
大型旋回破碎機生產線視頻
地下洞采 降本增效
項目地址:山西省忻州市代縣
礦區面積:約16平方公里
礦石性質:鐵礦石
采礦形式:地下洞采
項目所在礦區的鐵礦石品位層次分布不均,客戶計劃在洞內實施爆破并采用卡車轉運至地面進行破碎、篩分、磨選等作業,這種傳統工藝轉運及安成本較高,且效率低下。與此同時,傳統旋回破碎機由于建設高度較高,無法滿足洞內采礦破碎作業要求。基于此,客戶急需尋找一種低矮型且具備大產能的設備安裝于洞內,直接將原石破碎至皮帶機可輸送的物料規格,并能滿足二、三級破碎所需的礦石粒度規格。
經多方考察對比,客戶中譽鼎力DLHGC臥式旋回破碎機是比較合適的破碎設備,可安置于采礦洞內進行頭破作業,這款設備不僅基礎建設成本較低,產能大,維護所需高度也合適。客戶果斷決定購置安裝,并于近日在項目試驗場地成功試機。

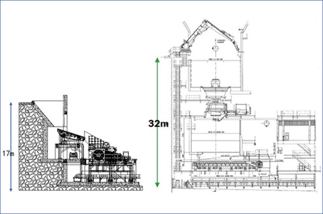
臥式旋回破與傳統旋回破建設高度對比
大型旋回破碎機生產線安裝視頻

設備安裝試機
出料粒度 滿足要求
成功試機,不止于設備穩定運行,還在于對客戶要求的進一步滿足!
據介紹,結合現場實際情況,該項目二級破碎機的入料粒度小于200mm時破碎機效率高,且產能更大。因此,客戶提出了希望公司臥式旋回破碎機能實現出料成品小于200mm的能力要求。
針對此具體要求,中譽鼎力技術研發工程師陳碧、制造工藝部部長毛寶華等人現場改造了篦條間隙及破碎腔型結構。經帶料開機實測,出料成品完可以滿足小于200mm的粒度要求,客戶表示達到了預期效果,對此很滿意。
以下是傳統設備的出料成品參數對比——
傳統旋回破碎機VS顎式破碎機
(數據來源于網絡)
出料成品測試參數
A原料樣品礦石粒度比例:

B破碎后成品料粒度比例:


根據以上數據,傳統旋回破碎機及顎式破碎機通常情況下的出料均為350mm左右。而中譽鼎力DLHGC臥式旋回破碎機成功實現了成品料小于200mm的粒度要求,擁有更大的破碎比,甚至可以將傳統的三級硬巖破碎工藝簡化為兩級工藝,設備優勢顯著。

卡車轉運礦石出洞

轉運皮帶機安裝現場
據了解,目前項目正在進行緊張有序的皮帶機等輔助設備施工中,計劃年后在礦洞內完成臥式旋回破碎機的設備安裝,正式投入地下采礦頭破作業。洞外進行二級破碎、篩分、磨選等處理工藝,再選出的高質量鐵粉,不僅可以供給當地鋼鐵廠冶煉制造鋼板、鋼坯,鐵精粉還可以滿足電力工業、化工等域的用料需求。

















